首页
公司介绍
新闻中心
组织机构
服务理念
售后服务
联系我们
产品中心
jtgk.png

产品中心

GUQ气动高真空球阀

您的位置:阀门 - 球阀 - GUQ气动高真空球阀 更新时间:2024-07-27 09:07:54
GUQ气动高真空球阀
    • 质量安全:压力、材质、密封等全方位检测确保质量过关!
    • 价格比较:在相同品质的情况下,厂里直销,更具有优势!
    • 交货快捷:常规产品现货供应,生产加工销售一条龙服务!
      上海凯利科阀门竭诚为您提供安全可靠的GUQ气动高真空球阀成套技术方案,以及售前选型报价,售后技术指导、安装、调试服务!

    • 产品描述
    • 在线询价
    • 技术咨询
    GUQ气动高真空球阀GUQ气动高真空球阀

    GUQ气动高真空球阀是通过电磁换向阀改变气路方向,控制执行气缸来驱动球阀,达到接通或切断真空(压力)系统管道路中的介质流。应用于真空、乳制品、酒业、生物工程、食品、制药、饮料、化妆品及化工领域。可选配反馈信号装置及电气阀门定位器。

    产品名称: 气动高真空球阀 产品型号: GUQ
    公称通径: DN10~DN300 结构形式: 球形
    公称压力: 1.6Mpa~6.4Mpa 连接方式: 法兰、螺纹、快卸法兰、活接
    适用温度: ≤180ºC 驱动方式: 手动、气动、电动
    阀体材质: 铸钢、不锈钢 制造标准: 国标GB、德国DIN、美国API、ANSI
    适用介质: 空气、气体、油、液体 生产厂家: 上海凯利科阀门有限公司

    产品说明

    GUQ气动高真空球阀是通过电磁换向阀改变气路方向,控制执行气缸来驱动球阀,达到接通或切断真空(压力)系统管道路中的介质流。应用于真空、乳制品、酒业、生物工程、食品、制药、饮料、化妆品及化工领域。可选配反馈信号装置及电气阀门定位器。

    主要零件材料

    阀体、阀盖、阀杆:不锈钢
    密封件:四氟乙烯、丁腈橡胶、氟橡胶、PPL。

    螺纹连接结构图

    螺纹连接的外形及连接尺寸(mm) (JB919)

    Model型号 DN G H E L
    GUQ-10(G) 10 1/4" 153 104 68
    GUQ-16(G) 16 1/2" 155 104 72
    GUQ-20(G) 20 3/4" 160 104 82
    GUQ-25(G) 25 1" 163 140 90
    GUQ-32(G) 32 1-1/4" 180 140 112
    GUQ-40(G) 40 1-1/2" 186 140 120
    GUQ-50(G) 50 2" 233 164 145
    GUQ-63(G) 63 2-1/2" 272 164 185
    GUQ-80(G) 80 3" 351 190 210
    GUQ-100(G) 100 4" 370 190 268

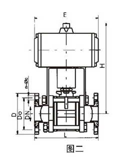
    活套法兰连接结构图

    活套法兰连接的外形及连接尺寸(mm) (GB6070)

    Model型号 DN D Do H E L n-φc
    GUQ-10(F) 10 55 40 153 105 84 4-φ6.6
    GUQ-16(F) 16 60 45 155 130 84 4-φ6.6
    GUQ-25(F) 25 70 55 163 165 114 4-φ6.6
    GUQ-32(F) 32 90 70 180 165 140 4-φ9
    GUQ-40(F) 40 100 80 186 190 160 4-φ9
    GUQ-50(F) 50 110 90 233 190 170 4-φ9
    GUQ-63(F) 63 130 110 272 250 195 4-φ9
    GUQ-80(F) 80 145 125 351 250 203 8-φ9
    GUQ-100(F) 100 165 145 370 280 280 8-φ9

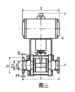
    快卸法兰连接结构图

    快卸法兰连接的外形及连接尺寸(mm) (GB4982)

    Model型号 DN D1 D H E L
    GUQ-10(KF) 10 12.2 30 153 104 84
    GUQ-16(KF) 16 17.2 30 155 104 84
    GUQ-25(KF) 25 26.2 40 163 140 114
    GUQ-32(KF) 32 34.2 55 180 140 140
    GUQ-40(KF) 40 41.2 55 186 140 160
    GUQ-50(KF) 50 52.2 75 233 164 170
     

    声明:【GUQ气动高真空球阀】规格型号、结构尺寸由上海凯利科阀门有限公司提供,如何选择适用的GUQ气动高真空球阀产品,使之在工艺控制中安全可靠、经济适用,可致电我司销售部门及技术部门,我们将在最短的时间内为您解答!

    Copyright ©2011-2022 上海凯利科阀门有限公司,版权所有。 沪ICP备11046016号-29 网站地图

    销售电话:021-31001158

    手机号码:13816746668 陈国辉/经理

    电子邮件:klkvalves@126.com@126.com

    主营产品:球阀,闸阀,蝶阀,截止阀,止回阀,调节阀

    本周热门:气动球阀气动蝶阀气动刀闸阀气动调节阀电动球阀电动蝶阀电动刀闸阀电动调节阀不锈钢球阀不锈钢闸阀不锈钢截止阀不锈钢止回阀不锈钢电磁阀高压电磁阀高压球阀波纹管截止阀

    官方网址:www.fm058.com