
Q911F电动内螺纹球阀
Q911F电动内螺纹球阀适用于两位切断、调节的场合。阀与执行机构的连接采用直连方式,电动执行机构内置伺服系统,无须另配伺服放大器,输入4-20mA信号及220VAC电源即可控制运转。具有连线简单,结构紧凑、尺寸小、重量轻、阻力小、动作稳定可靠等优点。执行机构可根据用户要求另配置UNIC、PSQ、HQ、DHL等型号电子式电动执行机构或GTX、AL等气活塞式执行机构。
| 产品名称: | 电动内螺纹球阀 | 产品型号: | Q911F |
| 公称通径: | DN15~DN100 | 结构形式: | 球形 |
| 公称压力: | 1.6Mpa~16.0Mpa | 连接方式: | 内螺纹、焊接 |
| 适用温度: | ≤550ºC | 驱动方式: | 电动(可佩带手操) |
| 阀体材质: | 铸钢、不锈钢 | 制造标准: | 国标GB、德国DIN、美国API、ANSI |
| 适用介质: | 水、油、气体、液体 | 生产厂家: | 上海凯利科阀门有限公司 |
| CH系列执行机构技术参数 | 阀体参数 | |||
| 电源 | AC200/220V,50/60Hz | 公称通径 | DN10~100mm | |
| 输出力矩 | 50N?M~2000N?M | 公称压力 | PN1.6 2.5 4.0 6.4 31.5MPa(定制) | |
| 动作范围 | 0~90° 0~360° | 泄漏量 | 软密封:零泄漏 | 硬密封:≤额定流量的10-5 |
| 动作时间 | 15秒/30秒/60秒 | 执行机构 |
可另配PSQ、HQ、UNIC、361RS等系列 电子式电动执行机构 |
|
| 保护装置 | 过热保护 | 流量特性 | 快开特性 | |
| 环境温度 | -30°~60° | 可调范围 | DN10-80 | |
| 250:1 | ||||
| 手动操作 | 同附带手柄操作 | 基本误差 | ±1% | |
| 限位 | 电气、机械二重限位 | 死区 | ≤1% | |
| 防护等级 | 相当于IP-65 | 回差 | ≤1% | |
| 位置测量 | 可选装开关或电位计 | 适用温度 | 密封面 | |
| 驱动电机 | 8W/E |
PTFE≤150℃ RTFE≤180℃ PPL≤300℃ 硬密封≤450℃ |
||
|
试验压力 (Mpa) |
公称压力(Mpa) | 压力级(class) | JIS(Mpa) | |||||||
| 1.6 | 2.5 | 4.0 | 6.4 | 10.0 | 150 | 300 | 600 | 10K | 20K | |
| 强度试验 | 2.4 | 3.8 | 6.0 | 9.6 | 15.0 | 3.1 | 7.8 | 15.3 | 2.4 | 3.8 |
| 密封试验 | 1.8 | 2.8 | 4.4 | 7.0 | 11.0 | 2.2 | 5.6 | 11.2 | 1.5 | 2.8 |
| 气密试验 | 0.5~0.7 | |||||||||
| 连接方式 | 内螺纹连接 | 对焊连接 | |||||
| 零件名称 | 阀体阀盖 | WCB | CF8(304) | CF8M(316) | WCB | CF8(304) | CF8M(316) |
| 球体、阀杆 | 2Cr13 | 0Cr19Ni9 | OCr17Ni12Mo2 | 2Cr13 | 0Cr19Ni9 | OCr17Ni12Mo2 | |
| 密封圈、填料 | 增强聚四氟乙烯、对位聚苯 | ||||||
| 适用工况 | 适用介质 |
水、蒸汽 、油品等 |
硝酸等腐 蚀性介质 |
醋酸等腐 蚀介质 |
水、蒸汽 、油品等 |
硝酸等腐 蚀性介质 |
醋酸等腐蚀介质 |
| 适用温度 | -29~180°C(增强聚四氟乙烯)、-29~300°C(对位聚苯) | ||||||
| 公称通径 | 内螺纹连接 | 对焊连接 |
执行器选配 (常温常压) |
||||||||||
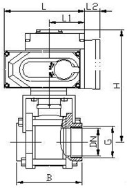
| mm | inch | D |
B (mm) |
H |
管螺纹 G |
B |
重量 (Kg) |
尺寸(mm) |
重量 (Kg) |
||||
| B | D1 | D2 | |||||||||||
| 10 | 3/8 | 10 | 60 | 57 | 3/8″ | 95 | 0.34 | 70 | 10 | 18 | 0.32 | AOX-005 | CHQ-005 |
| 15 | 1/2 | 15 | 75 | 68 | 1/2″ | 110 | 0.47 | 75 | 15 | 24 | 0.48 | AOX-005 | CHQ-005 |
| 20 | 3/4 | 20 | 80 | 70 | 3/4″ | 110 | 0.68 | 90 | 20 | 28 | 0.68 | AOX-005 | CHQ-005 |
| 25 | 1 | 25 | 90 | 80 | 1″ | 140 | 1.2 | 100 | 25 | 34 | 1.2 | AOX-005 | CHQ-005 |
| 32 | 11/4 | 32 | 110 | 85 | 11/4″ | 140 | 1.9 | 110 | 32 | 41 | 1.9 | AOX-008 | CHQ-008 |
| 40 | 11/2 | 38 | 125 | 100 | 11/2″ | 180 | 2.7 | 128 | 38 | 49 | 2.7 | AOX-008 | CHQ-008 |
| 50 | 2 | 50 | 144 | 110 | 2″ | 180 | 3.9 | 154 | 50 | 62 | 3.8 | AOX-010 | CHQ-010 |
| 65 | 21/2 | 64 | 186 | 130 | 21/2″ | 200 | 7.1 | 193 | 64 | 78 | 7.0 | AOX-010 | CHQ-010 |
| 80 | 3 | 78 | 206 | 150 | 3″ | 250 | 11.5 | 222 | 78 | 94 | 11.4 | AOX-020 | CHQ-020 |
| 100 | 4 | 98 | 240 | 170 | 4″ | 250 | 20.5 | 273 | 98 | 124 | 20.3 | AOX-020 | CHQ-020 |
声明:【Q911F电动内螺纹球阀】规格型号、结构尺寸由上海凯利科阀门有限公司提供,如何选择适用的Q911F电动内螺纹球阀产品,使之在工艺控制中安全可靠、经济适用,可致电我司销售部门及技术部门,我们将在最短的时间内为您解答! |