首页
公司介绍
新闻中心
组织机构
服务理念
售后服务
联系我们
产品中心
jtgk.png

产品中心

J44F46衬氟直角截止阀

您的位置:阀门 - 截止阀 - J44F46衬氟直角截止阀 更新时间:2024-07-27 09:07:37
J44F46衬氟直角截止阀
    • 质量安全:压力、材质、密封等全方位检测确保质量过关!
    • 价格比较:在相同品质的情况下,厂里直销,更具有优势!
    • 交货快捷:常规产品现货供应,生产加工销售一条龙服务!
      上海凯利科阀门竭诚为您提供安全可靠的J44F46衬氟直角截止阀成套技术方案,以及售前选型报价,售后技术指导、安装、调试服务!

    • 产品描述
    • 在线询价
    • 技术咨询
    J44F46衬氟直角截止阀J44F46衬氟直角截止阀

    J44F46衬氟直角截止阀专用于控制腐蚀性或强腐蚀性介质,阀体内腔表面覆有可供选择的各种氟塑料,适用在-50~150℃的各种浓度的王水、流酸、盐酸、氢氟酸和各种有机酸、强酸、强氧化剂,还适用于各种浓度的强碱有机溶剂以及其它腐蚀性气体,液体介质的管路上使用。

    产品名称: 衬氟直角截止阀 产品型号: J44F46
    公称通径: DN15~DN600 结构形式: 角式
    公称压力: 1.6MPa~2.5MPa 连接方式: 法兰
    适用温度: -29ºC~+180ºC 驱动方式: 手动
    阀体材质: 铸铁、铸钢、不锈钢 标准: 国标GB、德国DIN、美国API、ANSI
    适用介质: 腐蚀性液体或气体 生产厂家: 上海凯利科阀门有限公司

    产品说明

    J44F46衬氟直角截止阀专用于控制腐蚀性或强腐蚀性介质,阀体内腔表面覆有可供选择的各种氟塑料,适用在-50~150℃的各种浓度的王水、流酸、盐酸、氢氟酸和各种有机酸、强酸、强氧化剂,还适用于各种浓度的强碱有机溶剂以及其它腐蚀性气体,液体介质的管路上使用。

    执行标准

    设计规范:GB/T12233GB/T12235
    结构长度:GB/T12221
    连接法兰:JB/T78JB/T79
    试验与检验:GB/T13927
    产品标识:GB/T12220
    供货规范:JB/T7928

    产品优点

    1、流动阻力小。阀体内部介质通道是直通的,介质成直线流动,流动阻力小。  
    2、启闭时较省力。是与截止阀相比而言,因为无论是开或闭,闸板运动方向均与介质流动方 向相垂直。
    3、高度大,启闭时间长。闸板的启闭行程较大,降是通过螺杆进行的。  
    4、水锤现象不易产生。原因是关闭时间长。

    性能规范

    衬里、阀座 适用温度(℃) 适用介质
    PTFE(F4) ≤180 除熔融碱金属、元素氟外的各种浓度的酸、碱、盐、王水、有机酸等强腐蚀性介质
    PCTFE(F3) ≤120
    FEP(F46) ≤150
    PFA(可熔性F4) ≤180
    PVDF(F2) ≤100
    RPTFE(RF4) ≤180

    主要零件

    序号 零件名称 灰铸铁 铸钢 不锈耐酸铸钢 超低碳不锈耐酸铸钢
    Z C P R PL RL
    1 阀体/阀盖 HT250 WCB CF8 CF8M CF3 CF3M
    2 球体/阀杆 25 2Cr13 1Cr18Ni9 1Cr18Ni12Mo2Ti 00Cr18Ni10 00Cr17Ni14Mo2
    3 衬里/阀座 PCTEF(F3),FEP(F46),PFA(可溶F4),PP,PO
    4 填料压盖 WCB CF8 CF8M CF3 CF3M
    5 填料 PTFE(F4) PTFE(F4) PTFE(F4)
    6 活节螺栓 35 1Cr17Ni2 1Cr17Ni2
    7 阀杆螺母 ZCuAl10Fe3 ZCuAl10Fe3 ZCuAl10Fe3
    8 紧固螺栓 35 1Cr17Ni2 1Cr18Ni9Ti
    9 螺母 45 0Cr18Ni9 0Cr18Ni9
    10 手柄 WCB WCB WCB

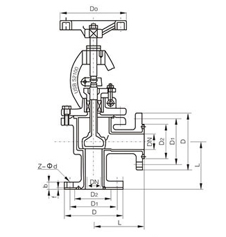
    外形结构图

    主要外形尺寸

    公称通经 L D D1 D2 f b Z-φd
    DN(mm) NPS(inch) PN1.0MPa
    15 1/2 90 95 65 45 2 14 4-φ14
    20 3/4 95 105 75 55 2 16 4-φ14
    25 1 100 115 85 65 2 16 4-φ14
    32 11/4 105 135 100 78 2 18 4-φ18
    40 11/2 115 145 110 85 3 18 4-φ18
    50 2 125 160 125 100 3 20 4-φ18
    65 21/2 145 180 145 120 3 20 4-φ18
    80 3 155 195 160 135 3 22 4-φ18
    100 4 175 215 180 155 3 22 8-φ18
    125 5 200 245 210 185 3 24 8-φ18
    150 6 225 280 240 210 3 24 8-φ23
    200 8 275 335 295 265 3 26 8-φ23
    250 10 325 390 350 320 3 28 12-φ23
    300 12 375 440 400 368 4 28 12-φ23
    PN1.6MPa
    15 1/2 90 95 65 45 2 14 4-φ14
    20 3/4 95 105 75 55 2 16 4-φ14
    25 1 100 115 85 65 2 16 4-φ14
    32 11/4 105 135 100 78 2 18 4-φ18
    40 11/2 115 145 110 85 3 18 4-φ18
    50 2 125 160 125 100 3 20 4-φ18
    65 21/2 145 180 145 120 3 20 4-φ18
    80 3 155 195 160 135 3 22 8-φ18
    100 4 175 215 180 155 3 24 8-φ18
    125 5 200 245 210 185 3 26 8-φ18
    150 6 225 280 240 210 3 28 8-φ23
    200 8 275 335 295 265 3 30 8-φ23
    PN2.5MPa
    15 1/2 90 95 65 45 2 16 4-φ14
    20 3/4 95 105 75 55 2 16 4-φ14
    25 1 100 115 85 65 2 16 4-φ14
    32 11/4 105 135 100 78 2 18 4-φ18
    40 11/2 115 145 110 85 3 18 4-φ18
    50 2 125 160 125 100 3 20 4-φ18
     

    声明:【J44F46衬氟直角截止阀】规格型号、结构尺寸由上海凯利科阀门有限公司提供,如何选择适用的J44F46衬氟直角截止阀产品,使之在工艺控制中安全可靠、经济适用,可致电我司销售部门及技术部门,我们将在最短的时间内为您解答!

    Copyright ©2011-2022 上海凯利科阀门有限公司,版权所有。 沪ICP备11046016号-29 网站地图

    销售电话:021-31001158

    手机号码:13816746668 陈国辉/经理

    电子邮件:klkvalves@126.com@126.com

    主营产品:球阀,闸阀,蝶阀,截止阀,止回阀,调节阀

    本周热门:气动球阀气动蝶阀气动刀闸阀气动调节阀电动球阀电动蝶阀电动刀闸阀电动调节阀不锈钢球阀不锈钢闸阀不锈钢截止阀不锈钢止回阀不锈钢电磁阀高压电磁阀高压球阀波纹管截止阀

    官方网址:www.fm058.com