
GA42H单杠杆安全阀
GA42H单杠杆安全阀适用于温度≤450℃的电站锅炉和压力容器上,防止压力超过允许最高值,介质可为蒸汽、空气。GA42H单杠杆安全阀除杠杆(材料为碳钢),重锤(材料为铸铁),其余材料均和A42H-16C型弹簧式安全阀相同。
| 产品名称: | 单杠杆安全阀 | 产品型号: | GA42H |
| 公称通径: | DN80~DN250 | 结构形式: | 单杠杆式 |
| 公称压力: | 1.6MPa~6.4MPa | 连接方式: | 法兰 |
| 适用温度: | -29ºC~+450ºC | 驱动方式: | 重锤杠杆 |
| 阀体材质: | 铸钢、不锈钢 | 制造标准: | 国标GB、德国DIN、美国API、ANSI |
| 适用介质: | 水、蒸汽、气体 | 生产厂家: | 上海凯利科阀门有限公司 |
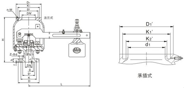
| 型号 |
公称通径 DN |
尺寸 | |||||||||||||||||||
| do | D | K | ɡ1 | ɡ | f | f1 | b | Z-φd | L | ≈H | 出口法兰式 | 出口承插式 | |||||||||
| DN' | ɡ2 | K1 | D1 | n-M | d1 | K2' | K1' | D1' | |||||||||||||
| GA42H-16 | 50 | 40 | 165 | 125 | 100 | / | 3 | / | 18 | 4-18 | 900 | 412 | 125 | 175 | 200 | 235 | 8-M16 | 120 | 145 | 162 | 190 |
| GA42H-25 | 50 | 40 | 165 | 125 | 100 | / | 3 | / | 20 | 4-18 | 900 | 412 | 125 | 175 | 200 | 235 | 8-M16 | 120 | 145 | 162 | 190 |
| GA42H-40 | 50 | 40 | 165 | 125 | 100 | 88 | 3 | 4 | 20 | 4-18 | 900 | 412 | 125 | 175 | 200 | 235 | 8-M16 | 120 | 145 | 162 | 190 |
| GA42H-64 | 50 | 40 | 180 | 135 | 105 | 88 | 3 | 4 | 26 | 4-23 | 900 | 420 | 125 | 175 | 200 | 235 | 8-M16 | 120 | 145 | 162 | 190 |
| GA42H-100 | 50 | 40 | 195 | 145 | 112 | 88 | 3 | 4 | 28 | 4-25 | 900 | 420 | 125 | 175 | 200 | 235 | 8-M16 | 120 | 145 | 162 | 190 |
声明:【GA42H单杠杆安全阀】规格型号、结构尺寸由上海凯利科阀门有限公司提供,如何选择适用的GA42H单杠杆安全阀产品,使之在工艺控制中安全可靠、经济适用,可致电我司销售部门及技术部门,我们将在最短的时间内为您解答! |