首页
公司介绍
新闻中心
组织机构
服务理念
售后服务
联系我们
产品中心
jtgk.png

产品中心

QZF-89全天候防火呼吸阀

您的位置:阀门 - 呼吸阀 - QZF-89全天候防火呼吸阀 更新时间:2024-08-03 09:08:20
QZF-89全天候防火呼吸阀
    • 质量安全:压力、材质、密封等全方位检测确保质量过关!
    • 价格比较:在相同品质的情况下,厂里直销,更具有优势!
    • 交货快捷:常规产品现货供应,生产加工销售一条龙服务!
      上海凯利科阀门竭诚为您提供安全可靠的QZF-89全天候防火呼吸阀成套技术方案,以及售前选型报价,售后技术指导、安装、调试服务!

    • 产品描述
    • 在线询价
    • 技术咨询
    QZF-89全天候防火呼吸阀QZF-89全天候防火呼吸阀

    QZF-89全天候防火呼吸阀采用抽屉防火结构,便于清洗及维护,是安装在固定顶罐上的通风装置,起减少油品蒸发损耗,控制储罐压力及阻止外界火焰传入的作用。该阀具有通风量大,泄漏量小,耐腐蚀等特点,并有静电接地线,使该阀与罐体保持等电位。该阀具有防冻性能,适用于寒冷地区。

    产品名称: 全天候防火呼吸阀 产品型号: QZF-89
    公称通径: DN50~DN400 结构形式: 防火、防冻
    公称压力: 1.6MPa 连接方式: 法兰
    适用温度: -40ºC~+80ºC 安装位置: 储罐顶部
    阀体材质: 铸钢、不锈钢 制造标准: 国标GB、德国DIN、美国API、ANSI
    适用介质: 汽油、柴油、煤油、原油、甲苯等 生产厂家: 上海凯利科阀门有限公司

    产品说明

    QZF-89全天候防火呼吸阀采用抽屉防火结构,便于清洗及维护,是安装在固定顶罐上的通风装置,起减少油品蒸发损耗,控制储罐压力及阻止外界火焰传入的作用。该阀具有通风量大,泄漏量小,耐腐蚀等特点,并有静电接地线,使该阀与罐体保持等电位。该阀具有防冻性能,适用于寒冷地区。

    标准规范

    制造标准:GB5908-86;SY7511-87
    法兰标准:HG20592-97;JB/T78-94
    检验标准:SY/T0511-1996《石油储罐呼吸阀》;API2000

    工作原理

    QZF-89全天候防火呼吸阀利用正负压阀盘的重量来控制储罐的排气正压和吸气负压。当罐内介质的压力在呼吸阀的控制操作压力范围之内时,呼吸阀不工作,保持油罐的密闭性;当往罐内补充介质,使罐内上部气体空间的压力升高,达到呼吸阀的操作正压时,压力阀被顶开,气体从呼吸阀呼出口逸出,使罐内压力不在继续增高;当往罐外抽出介质,使罐内上部气体空间的压力下降,达到呼吸阀的操作负压时,罐外的大气将顶开呼吸阀的负压阀盘顶开,使外界气体进入罐内,使罐内的压力不再继续下降,让罐内与罐外的气压平衡,来保护储罐的安全装置。

    操作压力

    等级 A B C D
    呼出压力 +355Pa(36mmH2O) +980Pa(100mmH2O) +1765Pa(180mmH2O) 由用户定
    吸入压力 -295Pa(30mmH2O) -295Pa(30mmH2O) -392Pa(40mmH2O)  

    通气量表

    代号 规格mm 50 80 100 150 200 250
    压力等级P 通气量m3/h
    A +355 25 60 90 190 340 500
    -295 20 50 75 160 280 450
    B +980 30 70 100 200 380 600
    -295 20 50 75 160 280 450
    C +1765 40 95 140 280 500 800
    -295 20 50 75 160 280 450
    允许泄漏量m3/h ≤0.04 ≤0.4

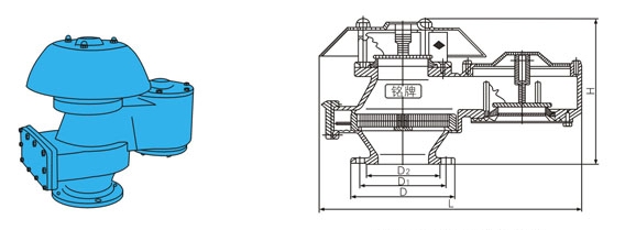
    外形结构图

     

    主要外形尺寸

    公称通径DN H L D D1 D2 n-d
    50 320 320 140 110 100 4×14
    80 366 400 190 150 135 4×18
    100 380 420 210 170 155 4×18
    150 450 520 265 225 210 8×18
    200 520 600 320 280 265 8×18
    250 600 680 375 335 320 12×18
    300 650 750 440 395 375 12×23
    350 700 850 490 445 425 12×23
    400 750 930 540 495 475 16×23

    声明:【QZF-89全天候防火呼吸阀】规格型号、结构尺寸由上海凯利科阀门有限公司提供,如何选择适用的QZF-89全天候防火呼吸阀产品,使之在工艺控制中安全可靠、经济适用,可致电我司销售部门及技术部门,我们将在最短的时间内为您解答!

    Copyright ©2011-2022 上海凯利科阀门有限公司,版权所有。 沪ICP备11046016号-29 网站地图

    销售电话:021-31001158

    手机号码:13816746668 陈国辉/经理

    电子邮件:klkvalves@126.com@126.com

    主营产品:球阀,闸阀,蝶阀,截止阀,止回阀,调节阀

    本周热门:气动球阀气动蝶阀气动刀闸阀气动调节阀电动球阀电动蝶阀电动刀闸阀电动调节阀不锈钢球阀不锈钢闸阀不锈钢截止阀不锈钢止回阀不锈钢电磁阀高压电磁阀高压球阀波纹管截止阀

    官方网址:www.fm058.com