



Z43WF平板闸阀
Z43WF平板闸阀适用于天然气,石油,化工,环保,城市管道,燃气管线等输送管线,放空系统和汽储存装置上,用作启闭设备。适用于天然气开采和净化的长输管线。
| 产品名称: | 平板闸阀 | 产品型号: | Z43WF、Z543WF、Z643WF、Z943WF |
| 公称通径: | DN50~DN1000 | 结构形式: | 单闸板、双闸板 |
| 公称压力: | 0.6Mpa~2.5Mpa | 连接方式: | 法兰、对夹 |
| 适用温度: | -20ºC~+150ºC~425ºC | 驱动方式: | 手动、链轮、伞齿轮、电动、气动、液动 |
| 阀体材质: | 铸钢、不锈钢 | 制造标准: | 国标GB、德国DIN、美国API、ANSI |
| 适用介质: | 水、油、蒸汽、污水等 | 生产厂家: | 上海凯利科阀门有限公司 |
| 设计规范 | 结构长度 | 连接法兰 | 试验与检验 | 压力-温度 | 产品标识 |
| JB/T5298 | JB/T5298 | JB/79 | JB/T5298 | GB9131 | GB/T12220 |
| API6D | API6D | ANSI-16.5 | API6D | ANSI B16.34 | MSS SP-25 |
| 设计等级 | 常温下试验压力(MPa) | 适用温度℃ | 适用介质 | |||||||
| 壳体 | 左密封 | 左密封 | 低压密封 | “G”型 | “D”型 | 普通型 | “抗硫”型 | “基本”型 | ||
| 公称压力PN(MPa) | 1.6 | 2.4 | 1.76 | 1.76 | 0.6 | -29~50 | -45~21 | -2~121 | H2S和CO2总含量大于500mg/m2的介质 | 石油天然气、水等 |
| 2.5 | 3.75 | 2.75 | 2.75 | 0.6 | ||||||
| 4.0 | 6.0 | 4.4 | 4.4 | 0.6 | ||||||
| 6.4 | 9.6 | 7.04 | 7.04 | 0.6 | ||||||
| 磅级Lb | 150 | 3.0 | 2.2 | 2.2 | 0.6 | |||||
| 300 | 7.7 | 5.6 | 5.6 | 0.6 | ||||||
| 阀门/阀盖 | WCB | WC6 | A352-LCB | A351-CF8M |
| 闸板 | 2Cr13+ENP | 20CrMoV+STL | ANSO410+ENP | ANSI316+ENP |
| 阀杆 | 2Cr13 | 2Cr13 | A182-A6a | A182-A316S |
| 阀座 | 25+PTFE | 20CrMoV+STL | A105+PTFE | A182-F316+PTFE |
| 填料 | NBR/FPM | 柔性石墨/Flexible Graphite | 聚四氟乙烯/PTFE+FPM | |
| 垫片 | - | 垫片 | - | |
| 螺栓 | 35 | 螺栓 | 35 | |
| 适用介质 | 水、油口、蒸汽 | 适用介质 | 水、油口、蒸汽 | |
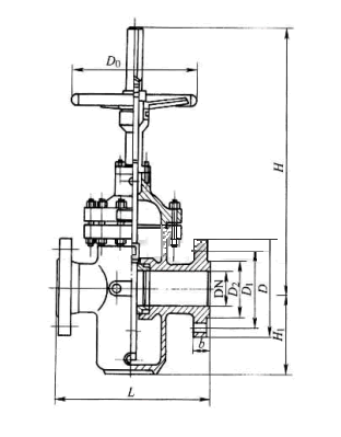
| 1.6MPa | DN | L | D | D1 | D2 | Do | f | b | H | H1 | n-Φd |
|
凸面法法 RF (K)Z43WF-16C (K)Z543WF-16C (K)Z643WF-16C (K)Z943WF-16C |
50 | 178 | 160 | 125 | 100 | 250 | 3 | 16 | 584 | 80 | 4-Φ18 |
| 65 | 190 | 180 | 145 | 120 | 250 | 3 | 18 | 634 | 95 | 4-Φ18 | |
| 80 | 203 | 195 | 160 | 135 | 250 | 3 | 20 | 688 | 100 | 8-Φ18 | |
| 100 | 229 | 215 | 181 | 155 | 300 | 3 | 20 | 863 | 114 | 8-Φ18 | |
| 125 | 254 | 245 | 210 | 185 | 350 | 3 | 22 | 940 | 132 | 8-Φ18 | |
| 150 | 267 | 280 | 240 | 210 | 350 | 3 | 24 | 1030 | 150 | 8-Φ23 | |
| 200 | 292 | 335 | 295 | 265 | 350 | 3 | 26 | 1277 | 168 | 12-Φ23 | |
| 250 | 330 | 405 | 355 | 320 | 400 | 3 | 30 | 1491 | 203 | 12-Φ25 | |
| 300 | 356 | 460 | 410 | 375 | 450 | 4 | 30 | 1701 | 237 | 12-Φ25 | |
| 350 | 381 | 520 | 470 | 435 | 500 | 4 | 34 | 1875 | 265 | 16-Φ30 | |
| 400 | 406 | 580 | 525 | 485 | 305 | 4 | 36 | 2180 | 300 | 16-Φ30 | |
| 450 | 432 | 640 | 585 | 545 | 305 | 4 | 40 | 2440 | 325 | 20-Φ34 | |
| 500 | 457 | 705 | 650 | 608 | 305 | 4 | 44 | 2860 | 360 | 20-Φ41 | |
| 600 | 508 | 840 | 770 | 718 | 305 | 5 | 48 | 3450 | 425 | 20-Φ41 | |
| 700 | 610 | 910 | 840 | 788 | 305 | 5 | 50 | 3960 | 460 | 24-Φ41 | |
| 800 | 660 | 1020 | 950 | 898 | 305 | 5 | 52 | 4550 | 512 | 24-Φ41 | |
| 900 | 711 | 1120 | 1050 | 998 | 250 | 5 | 54 | 5250 | 565 | 28-Φ48 | |
| 1000 | 811 | 1250 | 1170 | 1110 | 250 | 5 | 56 | 5870 | 630 | 28-Φ18 | |
| 2.5MPa | 50 | 178 | 160 | 125 | 100 | 250 | 3 | 20 | 584 | 80 | 4-Φ18 |
|
凸面法法 RF (K)Z43WF-25 (K)Z543WF-25 (K)Z643WF-25 (K)Z943WF-25 |
65 | 190 | 180 | 145 | 120 | 300 | 3 | 22 | 634 | 95 | 8-Φ18 |
| 80 | 203 | 195 | 160 | 135 | 350 | 3 | 22, | 388 | 100 | 8-Φ18 | |
| 100 | 229 | 230 | 190 | 160 | 350 | 3 | 24 | 863 | 114 | 8-Φ23 | |
| 125 | 254 | 270 | 220 | 188, | 350 | 3 | 28 | 940 | 132 | 8-Φ25 | |
| 150 | 267 | 300 | 250 | 218 | 400 | 3 | 30 | 1030 | 150 | 8-Φ25 | |
| 200 | 292 | 360 | 310 | 278 | 450 | 3 | 34 | 1277 | 168 | 12-Φ25 | |
| 250 | 330 | 425 | 370 | 332 | 500 | 3 | 36 | 1491 | 203 | 12-Φ30 | |
| 300 | 356 | 485 | 430 | 390 | 305 | 4 | 40 | 1701 | 237 | 16-Φ30 | |
| 350 | 381 | 550 | 490 | 448 | 305 | 4 | 44 | 1875 | 265 | 16-Φ34 | |
| 400 | 406 | 610 | 550 | 505 | 305 | 4 | 48 | 2180 | 300 | 16-Φ34 | |
| 450 | 432 | 660 | 600 | 555 | 305 | 4 | 50 | 2440 | 325 | 20-Φ34 | |
| 500 | 457 | 730 | 660 | 610 | 305 | 4 | 52 | 2860 | 360 | 20-Φ41 | |
| 600 | 508 | 840 | 770 | 718 | 305 | 5 | 56 | 3450 | 425 | 20-Φ41 | |
| 700 | 610 | 955 | 875 | 815 | 305 | 5 | 60 | 3960 | 460 | 24-Φ48 | |
| 800 | 660 | 1070 | 990 | 930 | 305 | 5 | 64 | 4550 | 512 | 24-Φ48 | |
| 900 | 711 | 1180 | 1090 | 1025 | - | 5 | 66 | 5250 | 595 | 28-Φ54 | |
| 1000 | 811 | 1305 | 1210 | 1140 | - | 5 | 68 | 5870 | 660 | 28-Φ48 |
声明:【Z43WF平板闸阀】规格型号、结构尺寸由上海凯利科阀门有限公司提供,如何选择适用的Z43WF平板闸阀产品,使之在工艺控制中安全可靠、经济适用,可致电我司销售部门及技术部门,我们将在最短的时间内为您解答! |