



Z43Y,Z63Y,Z83Y,Z23Y油田闸阀
Z43Y、Z63Y、Z83Y、Z23Y油田闸阀采用新型平衡浮动式密封结构,适用于压力不大于45MPa,温度不高于120℃的油、天燃气等管线上,作为控制介质的启闭及调节装置,该产品结构设计新颖、选材恰当、测度严格、操作轻便,具有较强防腐、耐磨、耐冲蚀性能,是石油工业界一种理想的新型装备。
| 产品名称: | 油田闸阀 | 产品型号: | Z43Y、Z63Y、Z83Y、Z23Y |
| 公称通径: | DN25~DN150 | 结构形式: | 闸板式 |
| 公称压力: | 16.0Mpa~42.0Mpa | 连接方式: | 法兰、焊接、卡套、外螺纹 |
| 适用温度: | -20ºC~+150ºC | 驱动方式: | 手动、伞齿轮、电动、气动、液动 |
| 阀体材质: | 铸钢、不锈钢 | 制造标准: | 国标GB、德国DIN、美国API、ANSI |
| 适用介质: | 水、蒸汽、石油、天然气、污水 | 生产厂家: | 上海凯利科阀门有限公司 |
| 设计标准 | JB/T5298、APl6D | |
| 结构长度 | 法兰 | GB/T 12221、JB/T 5298 |
| 焊接 | GB/T 15188.1 | |
| 连接法兰 | GB/T9113、JB/T 79 ANSl 16.5a | |
| 对焊端 | GB/T 12224 | |
| 试验和检验 | GB/T3927、JB/T 9092 | |
| 压 力 等 级 | 16 | 20 | 25 | 32 | 35 | 40 |
| 工作压力(Mpa) | ≤16 | ≤20 | ≤25 | ≤32 | ≤35 | ≤40 |
| 强度试验(Mpa) | 24 | 30 | 37.5 | 48 | 52.5 | 60 |
| 密封试验(Mpa) | 17.6 | 22 | 27.5 | 35.2 | 38.5 | 44 |
| 介 质 | 水、油、天燃气 | |||||
| 温 度 | -19~120℃ | |||||
| 抗硫型 | 含H2S、CO2的石油、天然气等 | |||||
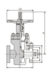
| 公称压力PN | 公称通径DN | 主要外形尺寸和连接尺寸 | ||||||||
| L | H | D0 | D1 | D2 | D | b | Z-φd | L0 | ||
|
16MPa 22MPa |
25 | 210 | 345 | 25 | 50.8 | 101.5 | 150 | 29 | 4-26 | 200 |
| 32 | 240 | 350 | 29 | 60-32 | 111.0 | 160 | 29 | 4-26 | 220 | |
| 40 | 260 | 380 | 36 | 68.28 | 124.0 | 180 | 32 | 4-29.5 | 280 | |
| 50 | 300 | 400 | 45 | 95.25 | 165.0 | 215 | 38.5 | 8-26 | 300 | |
| 65 | 320 | 440 | 58 | 107.95 | 190.5 | 245 | 41.5 | 8-29.5 | 350 | |
| 80 | 360 | 500 | 72 | 123.82 | 190.5 | 240 | 38.5 | 8-26 | 360 | |
| 100 | 450 | 540 | 90 | 149.22 | 235.0 | 290 | 44.5 | 8-32.5 | 400 | |
| 150 | 560 | 620 | 135 | 211.12 | 317.5 | 380 | 56 | 12-32.5 | 450 | |
|
25MPa 35MPa |
25 | 220 | 345 | 25 | 50.8 | 101.5 | 150 | 29 | 4-26 | 200 |
| 32 | 250 | 350 | 29 | 60-32 | 111.0 | 160 | 29 | 4-26 | 220 | |
| 40 | 270 | 380 | 36 | 68.28 | 124.0 | 180 | 32 | 4-29.5 | 280 | |
| 50 | 310 | 400 | 45 | 95.25 | 165.0 | 215 | 38.5 | 8-26 | 300 | |
| 65 | 340 | 440 | 58 | 107.95 | 190.5 | 245 | 41.5 | 8-29.5 | 350 | |
| 80 | 380 | 500 | 72 | 136.25 | 203.0 | 265 | 48 | 8-32.5 | 360 | |
| 100 | 480 | 540 | 90 | 161.92 | 241.5 | 310 | 54 | 8-35.5 | 400 | |
| 150 | 580 | 620 | 135 | 211.12 | 317.5 | 395 | 83 | 12-39 | 450 | |
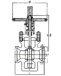
| 公称压力PN | 公称通径DN | 主要外形尺寸和连接尺寸 | ||||
| L | H | D0 | D1 | L0 | ||
|
16MPa 22MPa |
160 | 345 | 25 | 42 | 200 | |
| 32 | 180 | 350 | 29 | 54 | 220 | |
| 40 | 210 | 380 | 36 | 60 | 280 | |
| 50 | 230 | 400 | 45 | 73 | 300 | |
| 65 | 250 | 440 | 58 | 89 | 350 | |
| 80 | 270 | 500 | 72 | 108 | 360 | |
| 100 | 320 | 540 | 90 | 133 | 400 | |
| 150 | 500 | 620 | 135 | 192 | 450 | |
|
25MPa 35MPa |
25 | 160 | 345 | 25 | 42 | 200 |
| 32 | 180 | 350 | 29 | 56 | 220 | |
| 40 | 210 | 380 | 36 | 64 | 280 | |
| 50 | 230 | 400 | 45 | 76 | 300 | |
| 65 | 250 | 440 | 58 | 89 | 350 | |
| 80 | 270 | 500 | 72 | 114 | 360 | |
| 100 | 320 | 540 | 90 | 146 | 400 | |
| 150 | 500 | 620 | 135 | 192 | 450 | |
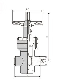
|
公称压力 (MPa) |
公称通径 (MPa) |
尺寸(mm) | |||||||
| L | L1 | H | D0 | D1 | D2 | b | L0 | ||
|
16 22 |
40 | 210 | 370 | 380 | 36 | 88.8 | 120 | 20 | 280 |
| 50 | 230 | 410 | 400 | 45 | 88.8 | 120 | 20 | 300 | |
| 65 | 240 | 440 | 440 | 58 | 88.8 | 120 | 20 | 350 | |
| 80 | 270 | 490 | 500 | 72 | 107.8 | 140 | 20 | 360 | |
|
25 35 |
40 | 230 | 390 | 380 | 36 | 88.8 | 120 | 20 | 280 |
| 50 | 240 | 420 | 400 | 45 | 88.8 | 120 | 20 | 300 | |
| 65 | 260 | 460 | 440 | 58 | 88.8 | 120 | 20 | 350 | |
| 80 | 290 | 510 | 500 | 72 | 107.8 | 140 | 20 | 360 | |
|
公称通径 DN(mm) |
尺寸(mm) |
重量 (Kg) |
|||||||
| DN | L | L1 | Tr | SR | H | H1 | DO | ||
| 50 | 47 | 212 | 30 | 120×6 | 40 | 364 | 312 | 440 | 60 |
| 65 | 57 | 235 | 30 | 130×6 | 40 | 402 | 330 | 480 | 75 |
| 80 | 70 | 267 | 35 | 150×6 | 60 | 495 | 41 1 | 500 | 90 |
| 100 | 92 | 330 | 45 | 180×8 | 74 | 543 | 443 | 500 | 110 |
声明:【Z43Y,Z63Y,Z83Y,Z23Y油田闸阀】规格型号、结构尺寸由上海凯利科阀门有限公司提供,如何选择适用的Z43Y,Z63Y,Z83Y,Z23Y油田闸阀产品,使之在工艺控制中安全可靠、经济适用,可致电我司销售部门及技术部门,我们将在最短的时间内为您解答! |