首页
公司介绍
新闻中心
组织机构
服务理念
售后服务
联系我们
产品中心
jtgk.png

产品中心

GYA液压安全阀

您的位置:阀门 - 安全阀 - GYA液压安全阀 更新时间:2024-08-01 11:08:59
GYA液压安全阀
    • 质量安全:压力、材质、密封等全方位检测确保质量过关!
    • 价格比较:在相同品质的情况下,厂里直销,更具有优势!
    • 交货快捷:常规产品现货供应,生产加工销售一条龙服务!
      上海凯利科阀门竭诚为您提供安全可靠的GYA液压安全阀成套技术方案,以及售前选型报价,售后技术指导、安装、调试服务!

    • 产品描述
    • 在线询价
    • 技术咨询
    GYA液压安全阀GYA液压安全阀

    GYA液压安全阀是装设在油罐顶上,保护油罐安全的一个重要附件。当机械呼吸阀发生故障时,液压安全阀就能代替机械呼吸阀进行排气或放气。

    产品名称: 液压安全阀 产品型号: GYA
    公称通径: DN80~DN250 结构形式: 活瓣式
    公称压力: 1.0MPa~1.6MPa 连接方式: 法兰
    适用温度: -40ºC~+80ºC 驱动方式: 自动
    阀体材质: 铸钢、不锈钢 制造标准: 国标GB、德国DIN、美国API、ANSI
    适用介质: 柴油、汽油、石油、天然气 生产厂家: 上海凯利科阀门有限公司

    产品说明

    GYA液压安全阀是装设在油罐顶上,保护油罐安全的一个重要附件。当机械呼吸阀发生故障时,液压安全阀就能代替机械呼吸阀进行排气或放气。

    产品作用

    GYA液压安全阀一种安全保护用阀,它的启闭件受外力作用下处于常闭状态,当设备或管道内的介质压力升高,超过规定值时自动开启,通过向系统外排放介质来防止管道或设备内介质压力超过规定数值。安全阀属于自动阀类,主要用于锅炉、压力容器和管道上,控制压力不超过规定值,对人身安全和设备运行起重要保护作用。

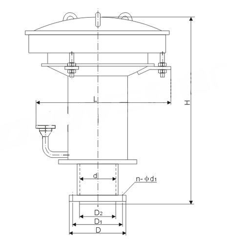
    外形结构图

     

    主要外形尺寸

    型号 规格 安装尺寸(毫米) 重量
    d D D1 D2 n-d1 L H
    GYA-80 80 85 185 150 ?125 4-18 376 424 38
    GYA-100 100 105 205 170 ?145 4-18 500 605 42
    GYA-150 150 148 260 225 ?200 818 650 705 66
    GYA-200 200 210 315 280 ?255 8-?18 900 755 97
    GYA-250 250 264 370 335 ?310 12-18 1050 885 140
     

    产品用途

    1、液压安全阀是(活瓣式)呼吸阀的安全备用设备,它的吸气和呼气的动作压力略高于(活瓣式)呼吸阀,在呼吸阀一旦失灵或在冬季其活瓣冻结时,液压安全阀的液封即被破坏从而保护油罐免遭破坏。
    2、液压安全阀装于油罐顶部与呼吸阀配合使用。
    3、控制压力:+56毫米水柱至-50毫米水柱。

    安装说明

    (l)额定蒸发量大于0.5t/h的锅炉,至少装设两个安全阀:额定蒸发量小于或等于0.5t/h的锅炉,至少装一个安全阀。可分
    式省煤器出口处、蒸汽过热器出口处都必须装设安全阀。
    (2)安全阀应垂直安装在锅商、集箱的最高位置。在安全阀和锅筒或集箱之间,不得装有取用蒸汽的出口管和阀门。
    (3)杠杆式安全阀要有防止重锤自行移动的装置和限制杠杆越轨的导架,弹簧式安全阀要有提升手把和防止随便拧动调整螺钉的装置。
    (4)对于额定蒸汽压力小于或等于3.82MPa的锅炉,安全阀喉径不应小于25mm:对于额定蒸汽压力大于3.82MPa的锅炉,安全阀喉径不应小于20mm。
    (5)安全阀与锅炉的连接管,其截面积应不小于安全阀的进口截面积。如果几个安全阀共同装设在一根与锅筒直接相连的短管上,短管的通路截面积应不步于所有安全阀排汽面积的1.25倍。
    (6)安全阀一般应装设排汽管,排汽管应直通安全地点,并有足够的截面积,保证排汽畅通。安全阀排气管底部应装腔 作势有接到安全地点的疏水管,在排气管和疏水管上都不允许装设阀门。

    注意事项

    一、各种安全阀都应垂直安装。
    二、安全阀出口处应无阻力,避免产生受压现象。
    三、安全阀在安装前应专门测试,并检查其官密封性。
    四、对使用中的安全阀应作定期检查。
     

    声明:【GYA液压安全阀】规格型号、结构尺寸由上海凯利科阀门有限公司提供,如何选择适用的GYA液压安全阀产品,使之在工艺控制中安全可靠、经济适用,可致电我司销售部门及技术部门,我们将在最短的时间内为您解答!

    Copyright ©2011-2022 上海凯利科阀门有限公司,版权所有。 沪ICP备11046016号-29 网站地图

    销售电话:021-31001158

    手机号码:13816746668 陈国辉/经理

    电子邮件:klkvalves@126.com@126.com

    主营产品:球阀,闸阀,蝶阀,截止阀,止回阀,调节阀

    本周热门:气动球阀气动蝶阀气动刀闸阀气动调节阀电动球阀电动蝶阀电动刀闸阀电动调节阀不锈钢球阀不锈钢闸阀不锈钢截止阀不锈钢止回阀不锈钢电磁阀高压电磁阀高压球阀波纹管截止阀

    官方网址:www.fm058.com